Loading…
East Calumet Street
Info
Photos
Location
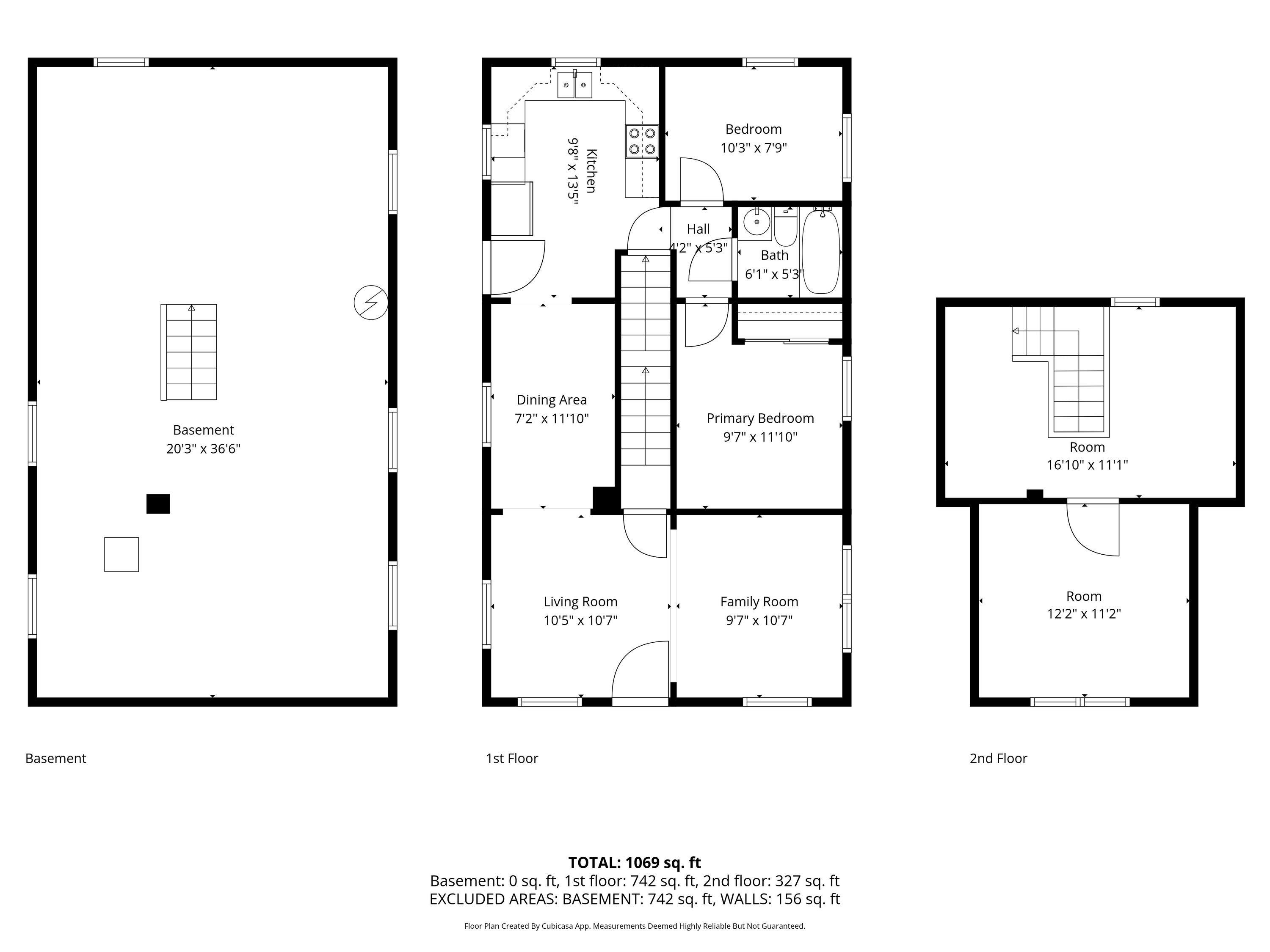
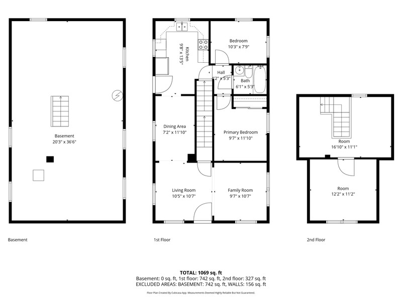
727 East Calumet Street
Appleton, WI 54915
1,100
sqft
3
beds
1
bath
Photos.
Location.