Loading…
East Saint Joseph Street
Info
Photos
Location
636 East Saint Joseph Street
Green Bay, WI 54301
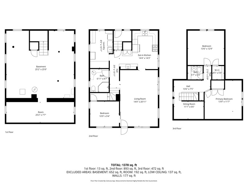
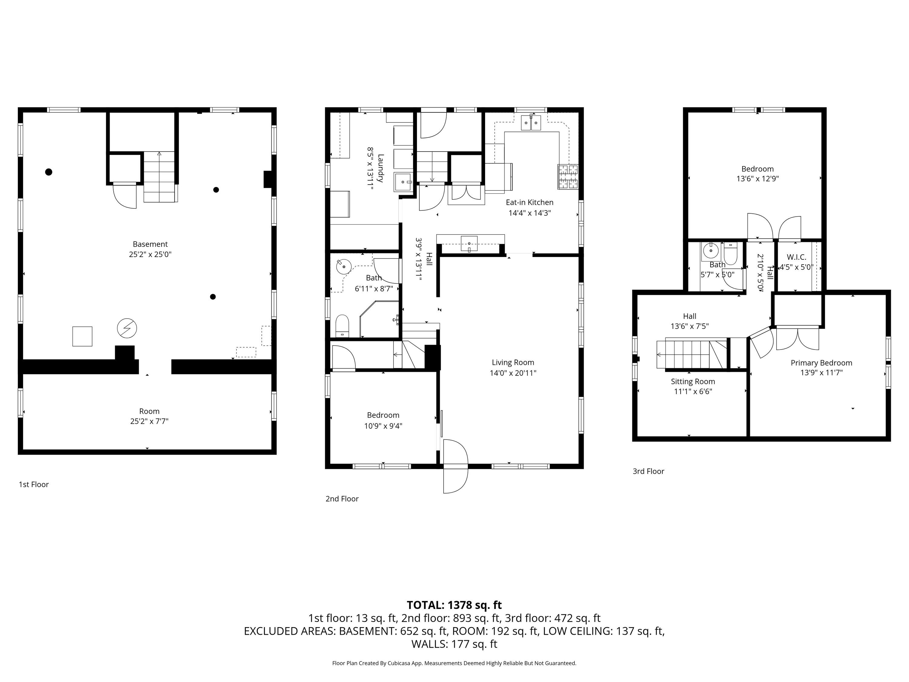
1,404
sqft
4
beds
1.5
baths
Photos.
Location.